2D & 3D tekenaar, visualisaties
ODADO
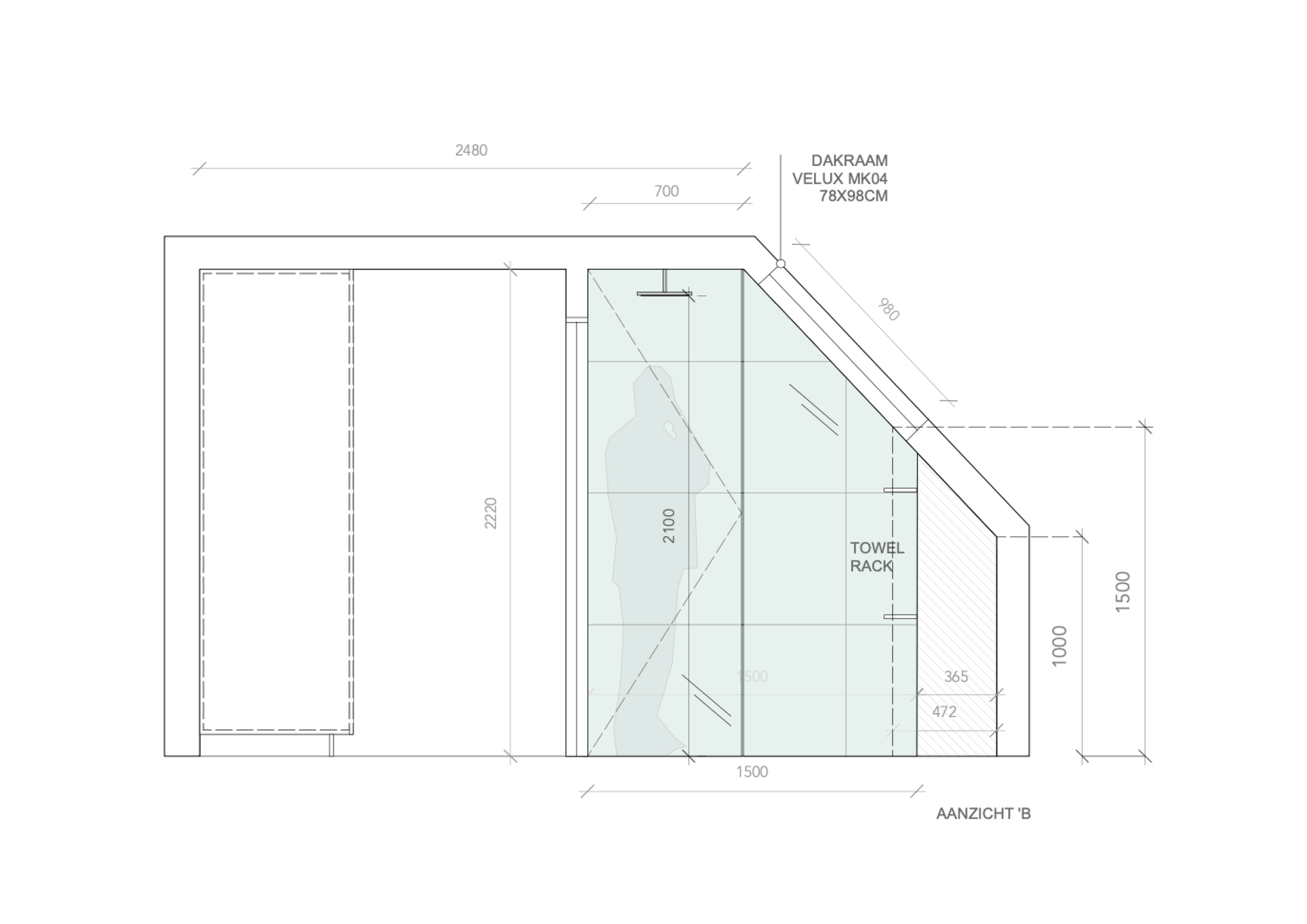
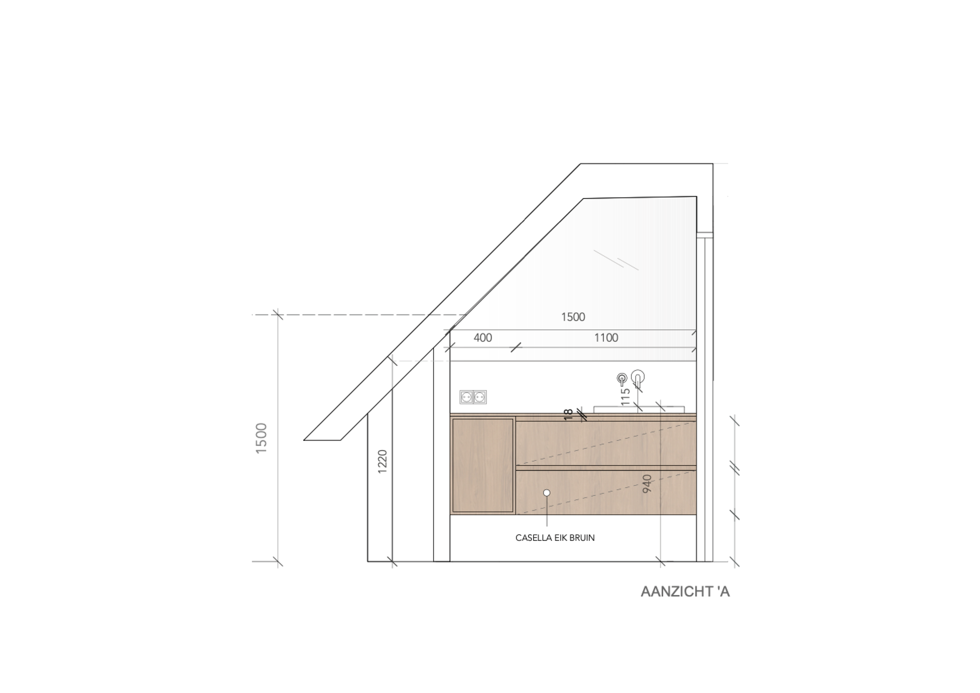
Voor dit interieurarchitectenbureau werk ik diverse tekeningen uit in Vectorworks, op basis van schetsen of aangeleverde modellen (IFC, Revit, DWG of SketchUp). Ik maak plattegronden met indeling en maatvoering, detailtekeningen van maatwerkmeubels, en installatietekeningen voor water, elektra en verlichting. Daarnaast visualiseer ik het ontwerp in 3D, render deze beelden en verzorg de nabewerking om sfeer en materiaalgebruik realistisch te presenteren. Zo ontstaat een compleet en helder pakket voor zowel klantpresentatie als uitvoering door de interieurbouwer.










